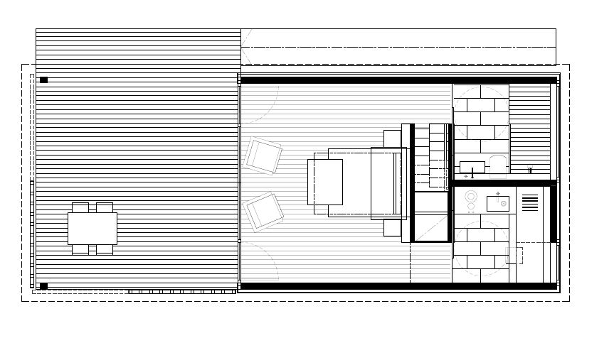
Nau Pequeño

Modelo NS-1814

2 – 4 personas  |  40 m2  |  1 habitación

El tamaño pequeño (S) se distribuye en planta baja y altillo. Tiene una superficie útil de 32 m2 en planta baja, 8 m2 de altillo y dispone de habitación-estar, baño, cocina y 24 m2 de porche en planta baja y dormitorio en altillo. Pensado para 4 personas.