Backpack Grande

Modelo L | BPL-0831

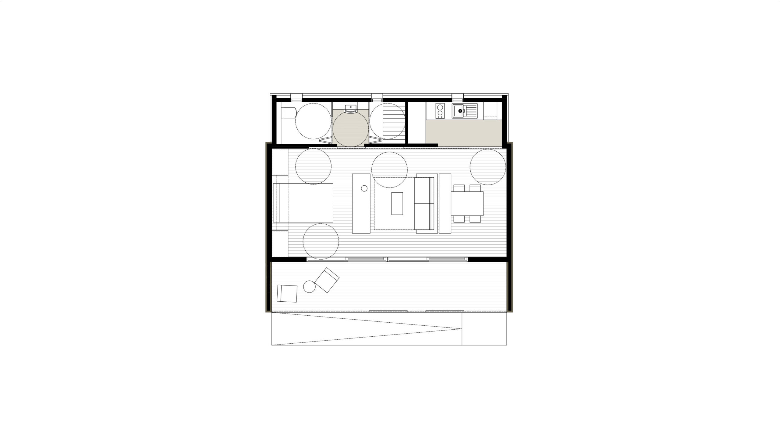
2-4 personas  |  59 m2  |  1 habitación

Este tamaño del modelo Backpack maximiza el espacio del apartamento interior. Idealmente constituido por la pastilla de servicios (baño y cocina) y un gran único espacio que alberga elespacio de dormir, el estar y la zona de comer. Todo el interior queda iluminado a través de una gran balconera que se puede abrir para unir porche con interior. Este espacio único interior, puede cambiarse para conformar 2 habitaciones. Se trata de un bungalow muy cómodo y espacioso, que además aporta un carácter moderno al lugar implantado.